A Vehir új cikksorozatában a Veszprémet érintő fejlesztésekről olvashatnak részletesebben. A sorozat harmadik részében a Kabay utcában építendő Egészségházról írunk, melyhez ismét Lamos Péter, a Polgármesteri Hivatal Városfejlesztési Iroda vezetője nyújtott segítséget.
A témával kapcsolatos korábbi írásaink itt és itt olvashatók.
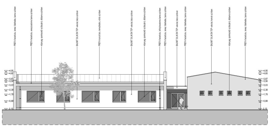
A Kabay utcában egy teljes mértékben akadálymentesített, jól megközelíthető komplexumot kezdtek el építeni júliusban. Ha az Egészségháznak nevezett épület elkészül, 3 új orvosi rendelőnek és 2 védőnői tanácsadónak ad majd helyet.
Az önkormányzat háziorvosai korábban nem messze, az Ádám Iván utcában praktizáltak, ám azt az épületet a város annak rossz műszaki állapota miatt értékesítette (gazdaságosan nem volt felújítható), helyén pedig egy új szolgáltatóházat építettek (ma itt egy mobilszolgáltató és egy pékség is működik). Az új épületbe való beköltözésig az itt dolgozó orvosok ideiglenesen a Komakút téri „SZTK”-ban rendelnek.
A beruházás az unió Területfejlesztési Operatív Program (TOP) fejlesztésének köszönhetően valósul meg. A projekt összköltsége bruttó 176 millió forint, melyhez a pályázatban elérhető forráshoz az önkormányzatnak önrészt kellett biztosítania.
Az Egészségházat Boros Zsombor építésztervező és csapata álmodta meg, korábban a Jutasi úti focipálya öltözőjét is ők tervezték, de részt vettek a Veszprém Aréna tervezési munkálataiban is. A kivitelezést a Min-Tech Kft. bonyolítja le.
Lamos Péter a műszaki adatokról elmondta, hogy egy „L” alaprajzú, földszintes, 300 négyzetméter alapterületű, 17x 33 méteres befoglaló méretű épületről van szó, külön bejárattal a háziorvosoknak, és külön a védőnőknek (a szeparációra az ÁNTSZ előírásai miatt volt szükség). Az épület kialakítása teljeskörű, komplex akadálymentesítéssel történik, melyhez 10 parkolót is építenek – ezek közül 1 db mozgáskorlátozottak számára lesz kialakítva.
A környezet gazdagításának érdekében kerttervet is készíttettek, melynek köszönhetően fákat és növényeket is ültetnek.
„Megújuló energiaforrást nem tudtunk az épületbe tervezni, ezért nem AA+-os a ház, de ezen kívül a legszigorúbb energetikai követelményeknek felel meg. Viszonylag tehát olcsón lehet majd üzemeltetni”- fűzte hozzá a Városfejlesztési Iroda vezetője.
Hogy áll most a projekt?
„A projekt ütemterve szerint szeretnénk, ha novemberre elérnénk azt az állapotot, hogy el tudjuk indítani a használatbavételi eljárást, hogy decemberre az orvosok már be tudjanak költözni. Így januártól már az orvosok és a védőnők is ott tudnának praktizálni.”
Az új Egészségház komplex szolgáltatásai révén mind az idősek, mind a kisgyermekes családok életében minőségi javulást fog eredményezni. Az új helyszínen is megmarad a 3 havonta tartott kiscsoportos babamasszázs-oktatás, illetve a nagy igényre való tekintettel tervezetten baba-mama klub indul.
Az Egészségházba dr. Gergelyi Ákos, dr. Kisvarga Magdolna és dr. Sinka László háziorvos, valamint Barabásné Fehér Krisztina és Szalainé Domján Réka védőnő költözik majd be.


